Z HOLBORN

Z HOTELS HOLBORN 

Adaptive Reuse Development: 196 Keys hotel. London, UK.

STATUS: In construction 

TEAM: Pablo Ayuso, Milan Sijakovic & Ruxandra Palcu (TT Architects) + Eamon Kelly (Contractor)

CLIENT: Private 

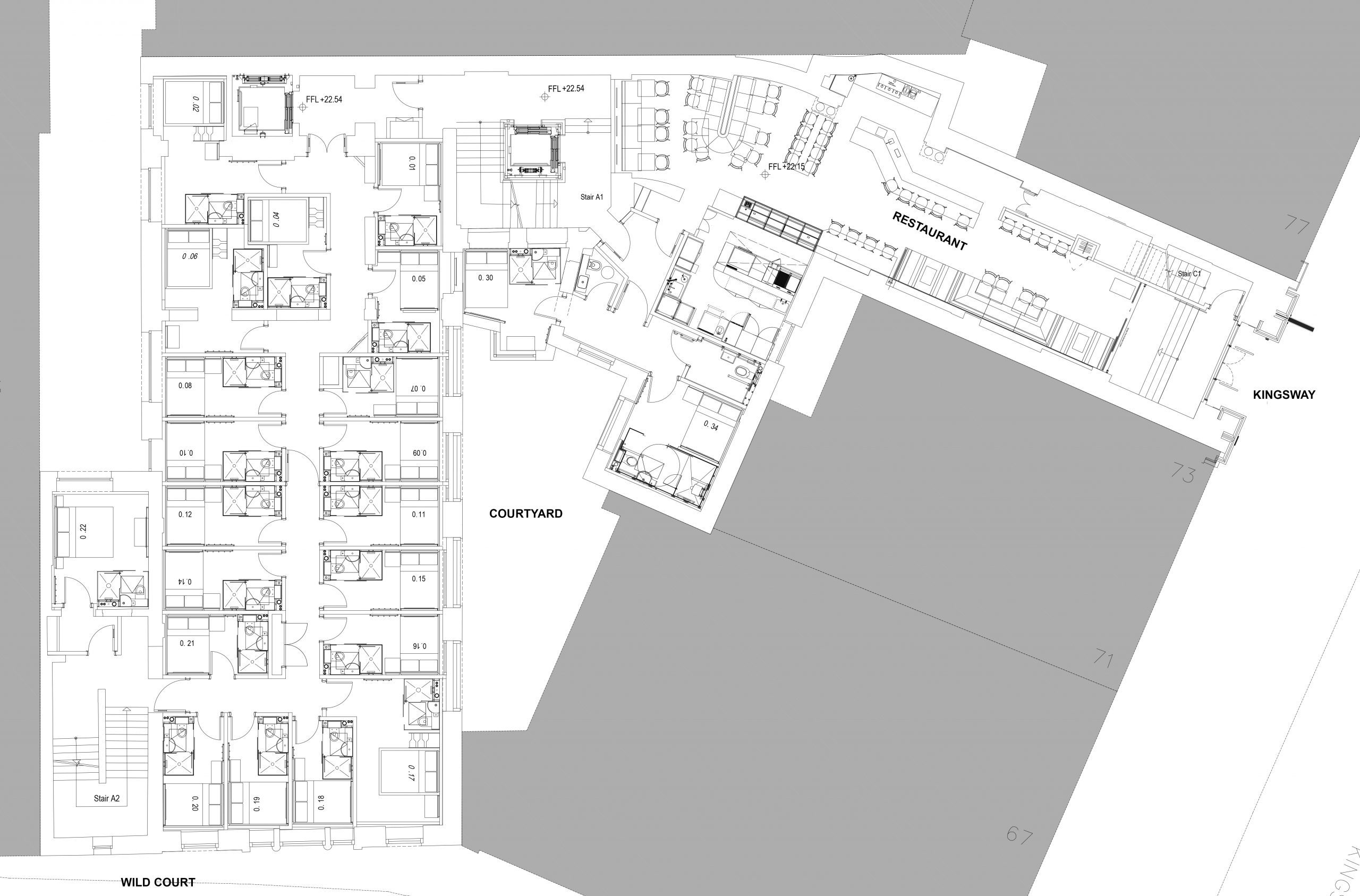
Z Hotels Holborn is located in the London Borough of Camden, in some of the buildings of the former Kingsway Hall Theatre: 75 Kingsway and 4 Wild Court. The use of college and offices has been changed into a hotel (196 bedrooms) and a restaurant.

The whole of 4 Wild Court has been converted to this purpose whilst only the ground and first floors of 75 Kingsway have been incorporated into the scheme. The 75 Kingsway provides the main entrance to the hotel, while the secondary entrance is located in 4 Wild Court. 

The biggest challenge for this project was re-joining three constructions, which originally were part of a much bigger building and have been sliced in the last thirty years.

As an adaptive reuse project, all the new structural elements are based on lightweight construction: steel and wood frame. Not only to reduce the environmental impact but also to make future alterations possible.

 

The seventh-floor extension is constructed with just one type of timber studs, 140 x 38 mm, and Fermacell boards. The façade is comprised of vertical standing seam zinc which is also used to cover the new roof.

Z Hotels Holborn se localiza en Camden, un barrio en el centro del Londres, y ocupa varios de los edificios que conformaron el Teatro Kingsway Hall: 75 Kingsway y 4 Wild Court. El uso de escuela de idiomas y de una tienda de comida rápida se transforma en un hotel y un restaurante.

El edificio que se sitúa en Wild Court se transforma en su totalidad en un hotel, mientras que la edificación que está en Kingsway, solo verá transformada su mezanine y planta baja, donde se localiza la entrada principal al complejo.

El gran desafío de este proyecto fue el proceso de cosido de varios de los antiguos edificios del teatro, que se habían desmembrado con el paso de los años, con los nuevos volúmenes creados en el patio interior y la séptima planta.

Todos los nuevos elementos estructurales se basan en una construcción ligera: estructura de acero y madera. No solo para reducir el impacto ambiental, sino también para facilitar futuras modificaciones del edificio.

La extensión del séptimo piso está construida con un solo tipo de montantes de madera, 140 x 38 mm, y tableros Fermoselle. La fachada está compuesta por piezas verticales de zinc que también se utilizan para cubrir la nueva cubierta.